中古一戸建て 朝霞市幸町1丁目
所在地
朝霞市幸町1丁目
3,500万円
52.22坪
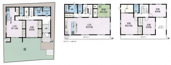
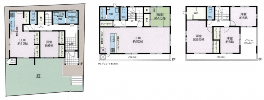
5LDK
□ILDK:IF 1坪タイプ浴室+収納豊富な大型システムキッチン
□4LDK:2F 4.5帖和室+20帖LDK(合わせると24.5帖大LDKに!!)
□シャワー室+大容量収納の大型システムキッチン
□3F 9.5帖洋室+WIC+6帖洋室×2
□インナータイプのルーフバルコニー!!!
□各階にトイレ有り (3カ所)
□玄関も大容量収納!!
□庭付きです!
□小学校徒歩4分・中学校徒歩10分
物件概要
- 交通
-
東武東上線 朝霞駅 まで 徒歩16分
- 接道状況
- 西側 私道
- 土地面積
- 130.90㎡ (39.59坪)
- 建物面積
- 172.64㎡ (52.22坪)
- 築年数
-
2001年
(平成13)
11月
築24年 - 建ぺい率
- 60%
- 容積率
- 160%
- 土地権利
- 所有権
- 構造および階数
- 木造 地上3階建
- 小学校区
- 朝霞第四 ( 270m )
- 中学校区
- 朝霞第一 ( 800m )
- 私道負担
- 地目
- 宅地
- 現況
- 居住中
- 引渡時期
- 相談
- 駐車場
- 上水道
- 公共
- 下水道
- 公共
- ガス
- プロパン個別
- 都市計画
- 市街化区域
- 用途地域
- 1種中高
- 設備・条件
- ルーフバルコニー、システムキッチン、ウォークインクローゼット、トイレ3か所、玄関大容量収納
- 備考
- ※図面と現況に相違がある場合は現況優先とします。
- 取引態様
- 仲介

