新築一戸建て 朝霞市根岸台4丁目
所在地
朝霞市根岸台4丁目
4,780万円
22.54坪
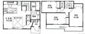
3LDK
□東武東上線「朝霞」駅まで徒歩16分
■イトーヨーカドー朝霞店→徒歩14分
■西友朝霞根岸店→徒歩13分
■ファミリーマート朝霞根岸台四丁目店→徒歩5分
■EQUIA朝霞→徒歩18分
■ウエルシア朝霞駅東口→徒歩11分
■カインズ朝霞店→徒歩15分
■朝霞根岸郵便局→徒歩12分
物件概要
- 交通
-
東武東上線 朝霞駅 まで 徒歩16分
- 接道状況
-
南側 公道4m
西側4m - 土地面積
- 77.92㎡ (23.57坪)
- 建物面積
- 74.52㎡ (22.54坪)
- 築年数
- 2026年 (令和8) 7月
- 建ぺい率
- 60%
- 容積率
- 100%
- 土地権利
- 所有権
- 構造および階数
- 木造 地上2階建
- 小学校区
- 朝霞第九 ( 1200m )
- 中学校区
- 朝霞第四 ( 2320m )
- 私道負担
- 地目
- 宅地
- 現況
- 建築中
- 引渡時期
- 相談
- 駐車場
- 上水道
- 公共
- 下水道
- 公共
- ガス
- 都市ガス
- 都市計画
- 市街化区域
- 用途地域
- 1種低層
- 設備・条件
- 食器洗浄乾燥機、複層ガラス
- 備考
- 取引態様
- 仲介

