新築一戸建て 朝霞市三原1丁目
所在地
朝霞市三原1丁目
5,780万円
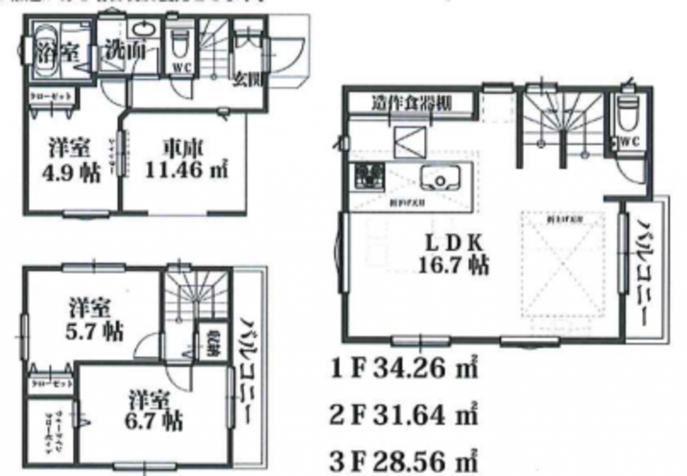
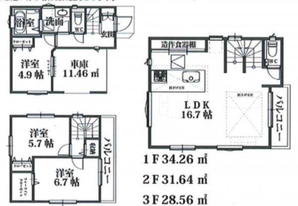
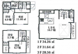
28.57坪
3LDK
□東武東上線「朝霞台」駅まで徒歩10分
■TAIRAYA朝霞三原店→徒歩7分
■サミットストア朝霞台店→徒歩6分
■セブンイレブン朝霞三原3丁目店→徒歩5分
■ドラッグセイムス朝霞台店→徒歩7分
■ファミリーマート朝霞束弁財一丁目店→徒歩5分
■朝霞三原郵便局→徒歩9分
■島忠新座店→徒歩13分
物件概要
- 交通
-
東武東上線 朝霞台駅 まで 徒歩10分
- 接道状況
- 東側 私道4m
- 土地面積
- 53.66㎡ (16.23坪)
- 建物面積
- 94.46㎡ (28.57坪)
- 築年数
- 2026年 (令和8) 6月
- 建ぺい率
- 60%
- 容積率
- 200%
- 土地権利
- 所有権
- 構造および階数
- 木造 地上3階建
- 小学校区
- 朝霞第五 ( 400m )
- 中学校区
- 朝霞第三 ( 1120m )
- 私道負担
- 地目
- 宅地
- 現況
- 引渡時期
- 相談
- 駐車場
- 上水道
- 公共
- 下水道
- 公共
- ガス
- 都市ガス
- 都市計画
- 市街化区域
- 用途地域
- 1種中高
- 設備・条件
- 食器洗浄乾燥機
- 備考
- 取引態様
- 仲介

