新築一戸建て 朝霞市三原4丁目3号棟
所在地
朝霞市三原4丁目3号棟
5,380万円
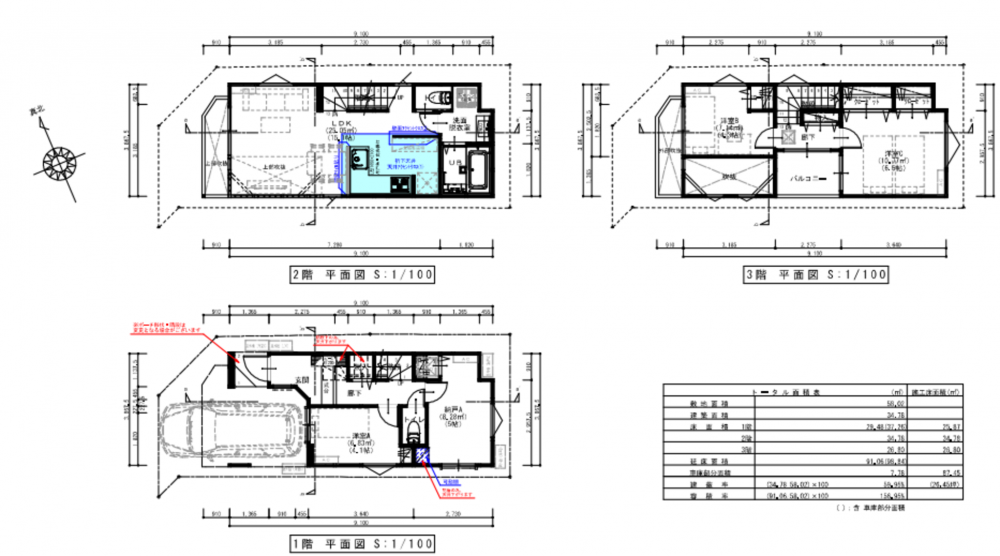
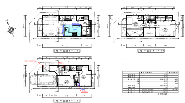
29.89坪
3LDK+S(納戸)
物件概要
- 交通
-
東武東上線 志木駅 まで 徒歩12分
- 接道状況
-
南側 公道4m
西側 私道4m - 土地面積
- 58.02㎡ (17.55坪)
- 建物面積
- 98.84㎡ (29.89坪)
- 築年数
- 2026年 (令和8) 8月
- 建ぺい率
- 60%
- 容積率
- 200%
- 土地権利
- 所有権
- 構造および階数
- 木造 地上2階建
- 小学校区
- 朝霞第五 ( 950m )
- 中学校区
- 朝霞第三 ( 2000m )
- 私道負担
- 地目
- 宅地
- 現況
- 引渡時期
- 相談
- 駐車場
- 上水道
- 公共
- 下水道
- 公共
- ガス
- 都市ガス
- 都市計画
- 市街化区域
- 用途地域
- 1種中高
- 設備・条件
- 備考
- 取引態様
- 仲介

