マンション 朝霞ハイデンス
所在地
朝霞市根岸台6丁目
3,480万円
72.47m²
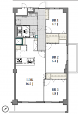
3LDK
□急行・準急停車駅の東武東上線 『 朝 霞 』 駅 徒 歩 5 分 ※ 『 池 袋 』 駅まで直通 15 分
□二面バルコニー共に眺望・日当たり良好
□ベッドルーム2はオープンタイプのワーキングスペース有在宅勤務もしやすいです
□キッチンの収納は充実しておりストックや消耗品を保管することができます
□耐震基準適合証明書取得可
□エレベーター2基
□パントリーやWIC充実
■ビッグエー朝霞仲町店 徒歩5分
■ファミリーマート朝霞駅東口店 徒歩5分
■西友朝霞根岸店 徒歩6分
■つつじ児童遊園地 徒歩1分
■朝霞市仲町保育園 徒歩5分
物件概要
- 交通
-
東武東上線 朝霞駅 まで 徒歩5分
- 専有面積
- 壁芯 72.47㎡
- バルコニー
-
12.00㎡
(南東側)
- 所在階/階数
- 5階/7階
- 築年数
-
1974年
(昭和49)
7月
築51年 - 建ぺい率
- 容積率
- 土地権利
- 所有権
- 構造および階数
- RC(鉄筋コンクリート) 造 地上7階建
- 総戸数
- 88戸
- 小学校区
- 朝霞第八 ( 1000m )
- 中学校区
- 朝霞第四 ( 1200m )
- 地目
- 現況
- 空
- 引渡時期
- 相談
- 駐車場
- 空無
- 駐車場月額
- 管理形態
- 全部委託
- 管理方式
- 管理人日勤
- 管理会社
- 日本ハウズイング株式会社
- 管理費
- 11,800円
- 修繕積立費
- 9,400円
- 上水道
- 下水道
- ガス
- 都市計画
- 用途地域
- 1種中高
- 設備・条件
- システムキッチン、洗浄便座、ウォークインクローゼット
- 備考
-
現状優先とさせていただきます。
写真の家具は販売対象に含まれません。
引渡し/相談(残代金清算後) - 取引態様
- 仲介

